Yellowstone Peaks Hotel
- 3765 Lodge Pole Dr Island Park Idaho 83429 US
- Tel. 866 430 2692
- Moje Rezervace
- Služba zákazníkovi
-
Ceny
- Fotografie
- Mapa
- Hotelová zařízení
- Informace o hotelu
- Všeobecné podmínky hotelu
Kdy byste rád/a přicestoval/a do Yellowstone Peaks Hotel?
Szoba típusa Rezervace {{room.name}}{{room.bedding.join(", ")}}
Vybavení pokoje
{{room.bedding.join(', ')}}
Szoba típusa Podmínky {{rateColumnTitle}} Rezervace {{room.name}}{{room.bedding.join(", ")}}
{{i18n.inHighDemand}}
{{getLowAvailabilityText(room.availability)}}
- {{rate.policy.refundable ? i18n.refundable : i18n.roomPolicy}}
- {{rate.promotion}}
- {{i18n.taxIncluded}}
- {{amenity.description}}
- Zaplatíte později!
- Installments available
{{price(rate.strikethrough)}}
{{price(rate.price)}}
{{price(rate.price_including)}} {{i18n.includingTaxesFees}}
{{i18n.todaysValueDeal}}
{{getLowAvailabilityText(room.availability)}}
{{i18n.available}}
Vybavení pokoje
{{room.bedding.join(', ')}}
{{i18n.roomType}} {{i18n.conditions}} {{rateColumnTitle}} {{room.roomName}}- Pay Later!
- {{i18n.taxIncluded}}
- {{i18n.vioPackageAmenity[amenity]}}
{{price(getVioRate(room.rate))}}
{{i18n.viewdeal}} {{i18n.available}}
{{i18n.comparableHotelsAvail.replace('%0%', city.name)}}
{{i18n.comparableHotelAvail.replace('%0%', city.name)}}
{{i18n.showAllNrHotels.replace('%1%', city.name)}}{{i18n.allHotelsIn.replace('%0%', totalInCity).replace('%1%', city.name)}}{{hotel.name}}
{{hotel.location.city}}, {{hotel.location.state}}, {{hotel.location.country}}
- {{getDistance(hotel.distanceMeter)}}
- Připojení Wi-Fi zdarma
- {{i18n.petFriendly}}
- {{i18n.indoorPool}}
- {{i18n.outdoorPool}}
- {{i18n.spa}}
{{i18n.fromPrice}}{{price(hotel.strikethrough)}}{{price(hotel.price)}}{{getPriceUnit()}}Yellowstone Peaks Hotel
Poloha▼ DalšíYellowstone Peaks Hotel je v národním parku ve městě Island Park. Jen kousek odtud se nachází Národní les Caribou-Targhee a 3 min. cesty autem je Státní park Harriman. Tento srub v přepychovém stylu se nachází 9,9 km od Přehrada Island Park Dam a 16,7 km od Divadlo Mack’s Inn Playhouse.
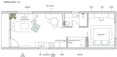
PokojeV jednom z 20 pokojů s osobitou výzdobou, k jejichž vybavení patří krby a soukromou venkovní vířivku, se budete cítit jako doma. Na posteli najdete prošívané přikrývky z prachového peří a exkluzivní ložní prádlo. Pohodlnou přípravu jídla vám umožní kuchyně s následujícím vybavením: lednička/mraznička, trouba a varná deska. Bezdrátový internet zdarma vám zajistí spojení se světem a LED televize (55 palcová), která nabízí digitální kanály, dobrou zábavu.
Vybavení nemovitostiMůžete využít širokou nabídku rekreačních zařízení, mezi něž patří mimo jiné 2 vířivky a sauna. Tento srub dále nabízí: bezdrátový internet zdarma, prostory pro piknik a plynové grily.
Další vybaveníRecepce má omezenou provozní dobu. Přímo v areálu je hostům k dispozici samostatné parkování zdarma.
Pokoje : 20
{{displayRating(reviewsContent.summary.overall_rating)}}/5{{getReviewLabel(reviewsContent.summary.overall_rating)}}{{reviewsContent.summary.overall_count}} hodnoceních{{displayRating(reviewsContent.summary.cleanliness)}}/5Čistý{{displayRating(reviewsContent.summary.service)}}/5Staff & Service{{displayRating(reviewsContent.summary.amenities)}}/5Amenities{{displayRating(reviewsContent.summary.condition)}}/5conditions & facilities{{Math.round(review.rating)}}/5 {{ getReviewLabel(review.rating)}}
{{reviewDateFormat(review.date_submitted)}}
{{review.text}}
{{review.reviewer_name}}
{{getTripReason(review.trip_reason)}}, {{getTravelCompanion(review.travel_companion)}}
Prohlédněte si všechna hodnocení návštěvníků {{reviewsContent.reviews.length}}
{{category.title}}
- {{amenity.label}}
- {{amenity.label}}
Přihlaste se k odběru zpravodaje
Mějte přehled o novinkách a speciálních nabídkách!
Vaše zpráva byla odeslána.
Kliknete zde a jdete na naši domovskou stránku.- Hotel reservations
- Hotelreservierungen
- Réservations d'Hôtels
- Prenotazioni Alberghiere
- Reservas de Hoteles
- Reservas de Hotéis
- Hotelreserveringen
- Reserves d'hotel
- Ξενοδοχειακές Κρατήσεις
- Rezerwacje hotelu
- Бронирование отелей
- Rezervace hotelu
- ホテル予約
- 酒店预订
- Hotellbokningar
- Hotellreservasjoner
- Hotelin varaukset
- Otel rezervasyonları
- Hotelreservationer
- Rezervări
- Хотелски резервации
- Hotel foglalások
© 2001 - 2025 HotelsOne. Všechna práva vyhrazena.
{{ title }}
Zavřít{{content}}{{i18n.roomType}} {{i18n.conditions}} {{rateColumnTitle}} {{room.roomName}}- Pay Later!
- {{i18n.taxIncluded}}
- {{i18n.vioPackageAmenity[amenity]}}
{{price(getVioRate(room.rate))}}
{{i18n.viewdeal}} {{i18n.available}}